Bilocale in affitto

Milano, Via giacomo quarenghi - Gallaratese
€ 1.000 / mese
2 locali 2 locali
70 Mq 70 Mq
1 bagno 1 bagno

Bilocale in affitto

Milano, Via giacomo quarenghi - Gallaratese

Descrizione annuncio

Via Quarenghi: ci troviamo nel quartiere Gallaratese, a poche centinaia di metri di distanza dal centro commerciale Bonola e dalla metropolitana che permette di raggiungere comodamente e con rapidità i maggiori punti di interesse della città. Il quartiere è famoso per la tranquillità e l'abbondanza di aree verdi, tra cui spiccano il Parco di Trenno ed il Bosco in Città, raggiungibili a piedi.

L'appartamento si trova in uno dei complessi residenziali più apprezzati del quartiere, per la sua posizione tranquilla ed al contempo strategica. Un complesso di piccole palazzine, recintato e dotato di portineria diurna, immerso in un gradevole giardino condominiale dove trovare serenità dopo un'intensa giornata di lavoro.

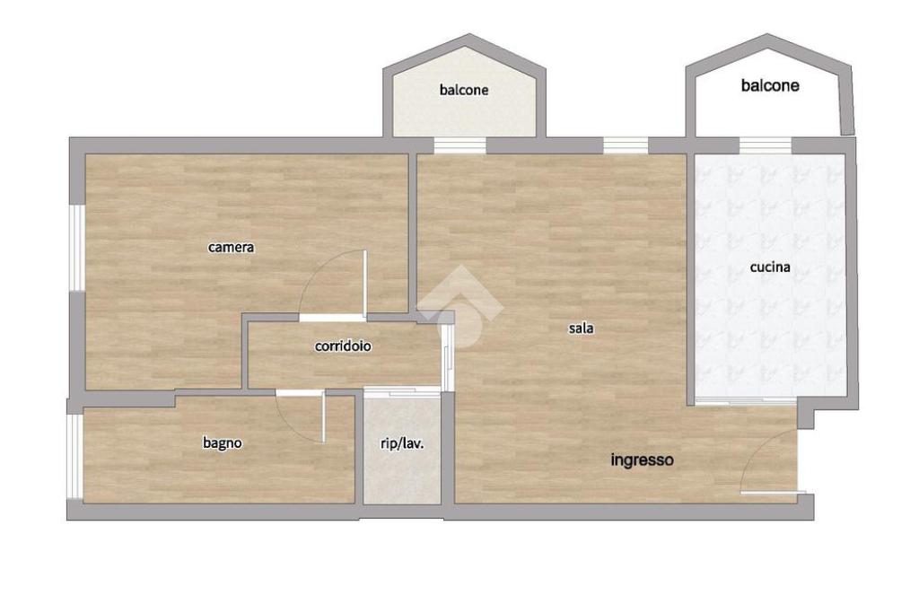
L'alloggio, dal taglio moderno, viene proposto arredato con mobili ed elettrodomestici di recente installazione ed è così composto: ampio soggiorno servito da un balcone, cucina abitabile servita da un secondo balcone, camera matrimoniale di buone dimensioni, bagno finestrato con ampio box doccia ed un pratico ripostiglio lavanderia.

La doppia esposizione dona luminosità e un buon ricircolo d’aria a tutti gli ambienti. Si segnalano infissi di moderna fattura, impianto di climatizzazione e la presenza di porta blindata.

Possibilità di parcheggio in un’apposita area riservata ai condomini.

L’importo della locazione non comprende le spese di gestione.

CLICCA SU PLANIMETRIA PER VISUALIZZARE LA PLANIMETRIA CON LE FOTOGRAFIE DEGLI INTERNI. Per appuntamenti i nostri incaricati sono disponibili da lunedì al venerdì dalle ore 9.00 alle 13.00 e dalle 15.00 alle 19.30 e il sabato dalle 9.00 alle 12.30. Contattateci per fissare un incontro gratuito nei nostri uffici. Ogni agenzia ha un proprio titolare ed è autonoma.

Mostra tutto

Nelle vicinanze

Trasporto pubblico Trasporto pubblico
Uruguay
Uruguay
150 m
Lampugnano
Lampugnano
710 m
stazione di Milano Certosa
stazione di Milano Certosa
1,7 Km
stazione di Milano Villapizzone
stazione di Milano Villapizzone
2,4 Km
Viale Certosa - Via Cormons
Viale Certosa - Via Cormons
830 m
Ricariche auto elettriche Ricariche auto elettriche
EnelX EVA+ ADS Q8 MILANO De Gasperi
1,6 Km
Iper Portello
2,0 Km
A2A Q8 Easy
2,0 Km
The Hub Hotel
2,2 Km
Sorgenia
2,2 Km
Scuole Scuole
Scuole
100 m
Istituto Professionale di Stato C. Porta
430 m
Centro Scolastico Quartiere Gallaratese
690 m
Istituto Comprensivo Statale G. Borsi
790 m
Scuola Primaria Via Magreglio
860 m
Farmacia Farmacia
Farmacia
260 m
Farmacia Comunale
400 m
Farmacia Bonola
610 m
Farmacia Madonnina
840 m
Farmacia Laghi
890 m
Ospedali Ospedali
Ospedali
610 m
Casa di Cura San Giovanni
2,3 Km
Ospedale FieraMilano
2,5 Km
Istituto Clinico Sant'Ambrogio
2,7 Km
ospedale Luigi Sacco
2,9 Km
Supermercati Supermercati
Carrefour Market
200 m
Supermercati
770 m
Lidl
1,0 Km
Conad
1,1 Km
Carrefour Express
1,5 Km
Negozi Negozi
Negozi
650 m
Intimissimi
1,9 Km
Max & Co.
1,9 Km
H&M
2,0 Km
Yamamay
2,0 Km
Bar Bar
Bar Articoli
610 m
Bar
690 m
Cafè Soleil
930 m
Magic
1,1 Km
Madison Music Hall
1,3 Km
Ristoranti Ristoranti
Ristorante Bonola
690 m
Cotica
690 m
Vincendo
820 m
Elegance
820 m
Ristorante Pizzeria San Giorgio
870 m
Mostra tutto

Caratteristiche

Rif.:
61152155
Piano:
1 di 4 con ascensore (Piano basso)
Posti auto:
1
Balconi:
1
Camere da letto:
1
Arredamento:
Completo
Mostra tutto
Prezzo Prezzo
€ 1.000 / mese
Spese annue Spese annue
€ 2.400

Classe Energetica

F
F
F
F
F
F
F
F
F
EP globale non rinnovabile:
209.64 kW h/m² anno
EP invernale del fabbricato:
EP estiva del fabbricato:
Anno di costruzione:
1970
Riscaldamento:
Centralizzato
Tipo impianto:
A radiatori
Tipo alimentazione:
Altro

Ti interessa visionare l'immobile?

Fissa un appuntamento  Fissa un appuntamento

Richiedi informazioni

Clicca su Leggi per aprire l'informativa
* Questi campi sono obbligatori
Affiliato
Dedalo Immobiliare Snc
Via Quarenghi, 34 20151 Milano (MI)

Il nostro staff


  • Davide Dattoli
    Affiliato

  • Andrea Denci
    Affiliato

  • Diletta Surgo
    Collaboratrice

  • Flora Tafuto
    Coordinatrice

  • Alessio Tornambè
    Collaboratore

  • Adriano Volpini
    Collaboratore
Via Quarenghi, 34 20151 Milano (MI)
Zona: Bonola - Trenno
Mostra su mappa
Orari: dal lunedì al venerdì: 09.00-13.00 e 15.00-19.30, sabato 09:00-12:30
Affiliato
Dedalo Immobiliare Snc
Via Quarenghi, 34 20151 Milano (MI)

2025 Tecnocasa Franchising S.p.A. - P. IVA 08365160152 - Via Monte Bianco 60/A 20089 Rozzano (MI). Ogni agenzia ha un proprio titolare ed è autonoma. Privacy policy | Policy utilizzo | Cookie policy